当前位置: 首页 / 淮安房地产网 / 楼市资讯 / 正文

1.png

正在阅读:方案公示!淮安一批学校迎来大动作,周边业主沸腾
分享文章

微信扫一扫

方案公示!淮安一批学校迎来大动作,周边业主沸腾

原创 发布:2023/3/6 15:00:00 来源:淮安楼市看点 183774 阅读
百年大计,教育为本!
就在刚刚!淮安主城两所学校传来新消息,项目设计方案公示了。淮安还有一批基础教育学校即将改善、开工、启用,教育迎来大爆发,快来一起了解一下!
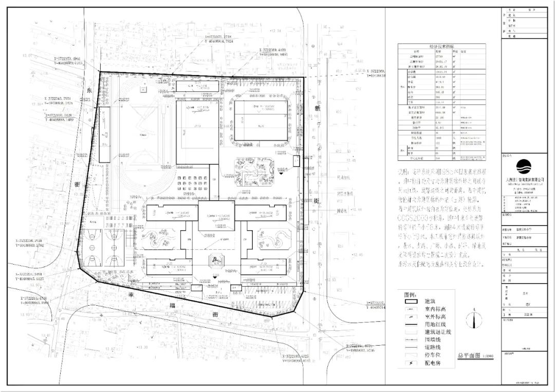
淮安市淮阴实验小学建设工程设计方案批前公示出炉!
近日,淮安自然资源和规划局发布了《淮安市淮阴实验小学建设工程设计方案批前公示》,淮阴区的业主们在孩子的小学教育方面多有了新选择,不少业主喜大普奔!
据规划, 淮安市淮阴实验小学项目位于淮阴区幸福街北侧,新街西侧规划总用地面积为27789平方米,总建筑面积29434.77平方米,容积率0.94,建筑密度23.13%,绿地率35.04%。
该学校办学规模为36个班,学生总数1440人。
淮阴实验小学紧邻淮安市第一人民医院,周边有文景学府、春风南岸和九里颐荷府新房在售,均价在1.1万-1.18万/㎡

淮安市新安小学中瑭府幼儿园建设工程设计方案批前公示出炉!
除了淮阴实验小学,淮安自然资源和规划局也发布了《淮安市新安小学中瑭府幼儿园建设工程设计方案批前公示》
根据规划,淮安市新安小学中瑭府幼儿园位于淮安区学院路北侧、前进路东侧,该地块用地性质为幼儿园用地,总用地面积为8900平方米,总建筑面积为6044.35平方米,计容建筑面积为5779.92平方米,容积率为0.65,建筑密度为21.67%,绿地率为35.11%。
该学校办学规模为15个班,学生总数450人。
从规划图可以看出,该幼儿园紧邻中瑭府。据此前规划,国联河西社区中塘府位于淮安区公园路南侧、前进路东侧。项目计划打造7栋住宅,层高25-26F,一共691套房源,户型建面约85-130㎡,适合刚需和刚改。
新建、改建、扩建……淮安一批新学校传来动态!
据此前淮安市人民政府官网发布的《2023年中心城市建设重点项目计划》,新建、改建、扩建……淮安一批新学校传来动态了。进入2023年,淮安教育资源迎来大爆发。
1、江苏省清江中学新校区建设项目

江苏省清江中学新校区位于淮安市清河新区,北至旺旺路,东至灵秀路,南至珠海东路,西至用地边界。

学校建筑面积约9.5万平方米,包括教学楼、行政办公楼、图书信息楼、科技实验楼、艺术中心楼、大报告厅、师生餐厅、学生宿舍、门卫及其他建筑等及其附属设施。
2、淮阴师范学院附属实验学校

淮阴师范学院附属实验学校位于孙大泓西侧、淮阴师范学院长江路校区对面,占地197亩,幼儿园8轨24班、小学10轨60班、初中12轨36班,合计12.5万平方米。

3、师院附中高中部新校区

师院附中高中部新校区学生会堂装修和设备购置项目,对6263.6平方米的学生会堂进行内部装修和设备购置安装,2023年计划完工。

4、通甫路九年一贯制学校初中部

通甫路九年一贯制学校初中部位于通甫路东侧、枚乘路南侧,占地约97.82亩,建筑面积约6万平方米,计划2023年主体完成,目前学校已动工。

5、生态文旅区云林路中学

生态文旅区云林路中学位于凤里路东侧、云林路北侧,项目占地约106亩,总建筑面积6万平方米,规划20轨60班,学校预计在2023年秋季学期招生。

6、检察院东侧地块小学

检察院东侧地块小学位于军营东路以南、东清路以西,占地约56.35亩,总建筑面积约6万平方米,12轨72班,新增3240个学位,新建教室、功能用房、跳水馆、餐厅、绿化、管网等。
7、天津路小学(含幼儿园)北校区

位于淮安经济技术开发区逢桥路以东、运南路以南、合意路以西,占地面积约60亩,总建筑面积约3.7万平方米;小学计划建设12轨72个班级,幼儿园计划建设4轨12个班级,计划2023年8月完工。
2023淮安不少社区门口将新增幼儿园教育资源,看看在不在你家门口↓↓↓
随着淮安城市发展进程,可以发现,优质教育资源进一步覆盖各板块,已然呈现出多点开花的势头。而雄厚的教育资源,正是助力城市可持续发展的宝贵资源!期待淮安教育资源均衡化,优质教育资源共享不断推进!

相关楼盘

1000-364.jpg