
微信扫一扫
2栋洋房+2栋高层!268套!正在公示!淮安这里,新房市场或迎来新格局…
进入10月以来,整个楼市似乎也变得热闹了起来!
中秋、国庆双节一过,便有不少楼盘“晒”出了假期成绩单,此外,利用双节假期开盘入市的楼盘更是不胜枚举……
久违的销售热潮,楼盘动作可以说是络绎不绝!
这不,就在长假结束后的第二个工作日(10月8日),淮安又有纯项目曝光了新消息!
01
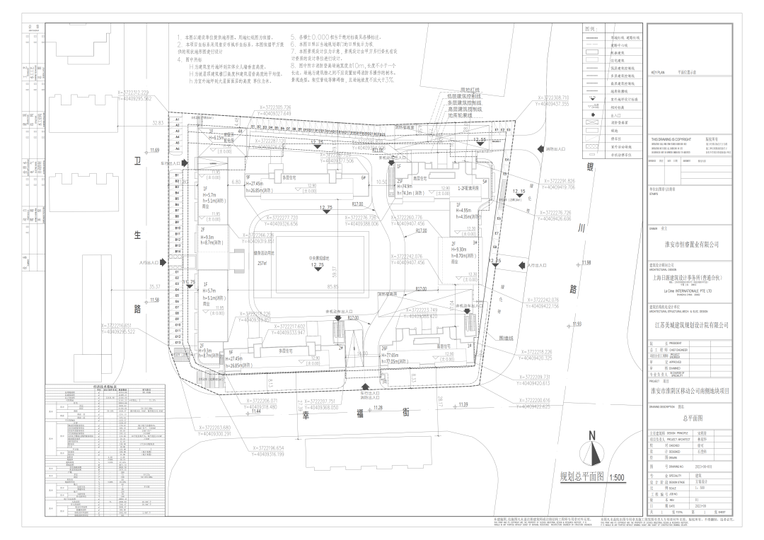
2栋高层+2栋洋房,总计268户
淮阴区盐河南纯新盘信息公示
而这个曝出最新信息的纯新便是位于淮阴区盐河南的,淮阴区移动公司南侧地块项目。
据梳理,项目位于幸福街北侧,银川路西侧,淮阴移动公司南侧。

从卫星地图上不难看出,该项目位置条件十分出色,周边交通便利,配套齐全!
地块周边的教育配套包括,淮阴区二附小、淮海中学老校区等;
商业配套则有淮阴区大润发以及烟火气十足的幸福街;
在交通方面,项目周边临近银川路、黄河路高架等城市主干道,出行条件十分良好。
项目地块在今年5月19日被江苏新睿控股有限公司以1.17亿元的底价摘牌,地块楼面价3607元/㎡。

从楼面价来看,虽然位于盐河南,但该地块的楼面价却远低于板块的地价“顶板”。
伴随着地块的建设工程设计方案批前公示,项目的产品信息也得到了进一步的曝光。
据公示,江苏新睿控股·淮自然(阴)挂2023第2号地块或将被打造成一个“小而精”的品质社区。
据规划方案,这个社区容积率仅2.2,总共也只有4栋楼,其中两栋25-26F高层,总户数196套,两栋9F小高层洋房,总户数72户,总建面约4.25万方。
无论从社区的低密属性还是,高层+洋房的产品配置看,项目未来的品质感都是可以预见的。

据笔者此前的实探,目前该项目的工地现场尚无动工的迹象,不过项目的建设工程设计方案已经批前公示,项目距离面市显然也就更近一步了。

02
土地市场开闸!
盐河南大润发商圈新房市场或迎来新格局
这些年,伴随着九里颐荷府、春风南岸、香溢荣府等项目的相继入市淮阴区盐河南的新房市场似乎并不缺少楼盘。
不过,幸福城、金润城等一批老盘相继售罄之后,盐河南楼市的步子显然已经偏向银川路以西了,而此前火热的淮阴区大润发商圈周边却在持续“房荒”。
随着今年该板块土地市场的“开闸”,这种局面或将迎来改变!
除了已经在批前公示的淮阴区移动公司南侧地块外,还有前不久刚刚被淮安淮阴开源城乡建设有限公司以1.64亿的底价摘牌的淮自然(阴)挂2023第6号地块。(淮阴区二附小西侧地块)也属于这个片区。

从位置上看,二附小西侧地块距离淮阴区大润发以及二附小都更近,不过需要注意的是,该地块的楼面价却只有3387元/㎡,相较于移动公司南侧地块却还要便宜一些。

土地市场的接连“开闸”也让淮阴区大润发商圈在“断档”多年之后,迎来重启的可能。
由于整个板块的成熟度较高,商业、教育资源都很丰富,因此淮阴区大润发商圈周边的二手房不仅交易活跃,而且价格坚挺。
这一点从两宗地块之间的幸福城小区二手房情况就能看出。
据梳理,该小区目前在贝壳平台共有188套挂牌,在近90天共有2套成交,带看更是超过了90次,从房源售价看,单价普遍10000+/㎡。

稳定的单价及成交量也正说明了淮阴区大润发板块备受市场青睐。
而伴随着新鲜土地的供应,该板块新房市场也将迎来新格局。而相对于幸福城等老盘,新房在产品打造上,显然会更加符合当下人居体验的需求。
对于买房人而言,板块新房市场的新格局,或将开启淮阴区大润发商圈人居的再度迭代。
对此,你有何看法?欢迎评论区留言表达观点…

微信公众号




